Apartment for sale in Tuscany, Italy
- Bedrooms: 2
- Bathrooms: 2
- Built size: 89 m2
Request Info
Property description
Apartment for sale in Tuscany, Italy
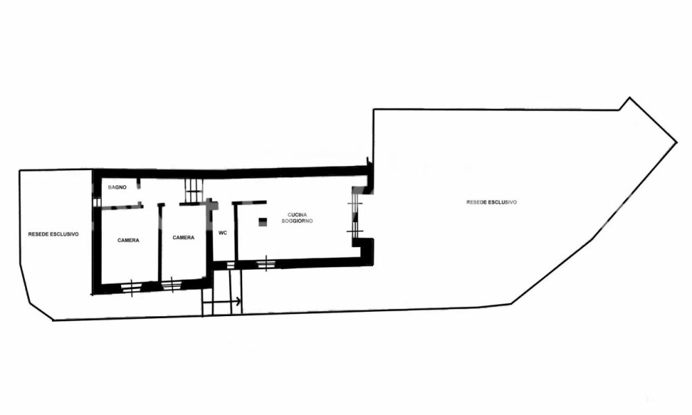
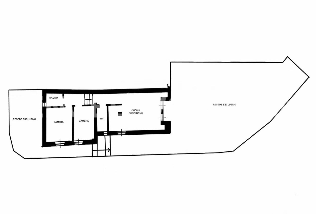
LOVELY APARTMENT LOCATED IN A SPLENDID MEDIAEVAL HAMLET, owned from Albizzi family and restored in the total respect of the Tuscan architecture style. This apartment is in the lower part of the Borgo and thanks to this it also has the better view, without any intrusions. You will enter the property from its own resede that leads to the living area with dining table and kitchen corner and a door to the terrace. From the aisle you will find the bathroom, the small bedroom, the master bedroom and the second bathroom both with windows and shower.
The heating system works with LPG gas and there is also the air condition system. This property is perfect for who loves to walk in the untouched nature. It is a lace far from the busy streets and artificial noises, you will be able only to hear the sound of nature. In origin it was a farmer village that grew also due to the Albizzi family who built one of them manor in the village. Community costs 1,700 EUR p/year
https://youtu.be/zwwIlKStHvg
Main Features
- Reference:SH347635
- Location: Tuscany
- Type: Apartment
- Bedrooms: 2
- Bathrooms: 2
- Built size: 89 m²
- Heating: Airconditioning (heating + cooling)
- Parking: Private parking space
- Outside area: Private garden, Terrace / Balcony
- Pool: Communal
Other Features
- Airconditioning
- Garden
- Parking
- Swimming pool


















