Beautiful, Character Quinta with Annexes in a Peaceful Setting - East algarve, Portugal Multifamily villa in the countryside of Albufeira - Central algarve, Portugal For Sale Villa 200 m² in Crete - Greece 4 bedroom golf-front villa in Vila Sol - Vilamoura - Central algarve, Portugal

House for sale in Norway

  • Bedrooms: 4
  • Bathrooms: 3
  • Built size: 175 m2
  • Plot size: 571 m2

Request Info

    Ref: SH462875
    € 1,285,000
    USD 1,323,550

    Property description

    House for sale in Norway

    Luxurious 5 bedroom mountain house in ski resort OppdalPROJECT FEATURES:

    – Very good location, amazing view, near ski slopes of Vangslia ski center.

    – Modern design, high quality finishing, fully furnished, ready to move in.

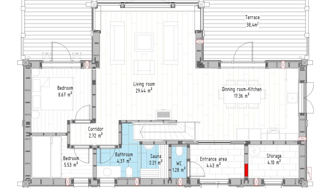
    – Oppdal – one of the best ski resort of Norway with all year-round activities.FLOOR PLAN

    This mountain retreat features an entryway with ample storage and a convenient guest toilet. Adjacent to the entrance, there’s external access to a storage room.

    The expansive hall leads to a well-appointed kitchen area, offering ample space for a sizable dining area and access to the terrace. An open layout seamlessly transitions to a spacious living room boasting a fireplace, lofty ceilings, and expansive windows offering picturesque views of Oppdal’s breathtaking scenery. Within the living area, two bedrooms and a tiled bathroom with a sauna are situated, with the master bedroom having direct access to the terrace.Upstairs, a capacious bathroom, a functional storage area, two bedrooms, a living room, and a TV room—complete with additional sleeping arrangements—are present. Abundant natural light floods through large windows in the TV room, enhancing the open, airy ambiance. A glass wall with a glass door adjoining the living room further accentuates the sense of space and natural light.KITCHEN

    The kitchen, custom-made by LHM Interiør, combines durability and refined design. It maximizes space with soft-close drawers, LED lighting in display cabinets, and efficient sensor-controlled illumination. Furnished with top-tier Egger materials, including oak laminated fronts and a Decton Laos 20mm quartz composite worktop, it houses premium Franke and Dornbracht fixtures. Miele and Temptech appliances, modern Blum hardware, and a comprehensive source sorting system complete this state-of-the-art kitchen.BATHROOMS

    The bathrooms are meticulously designed to suit each cabin model, boasting a contemporary and expansive appearance with sizable tiles finished in a matte natural texture. Featuring delicate bathroom furnishings including soft-close drawers or doors, elegant ceramic basins, and high-quality fixtures. Each bathroom is equipped with a comprehensive overhead shower comprising both a rain shower and handheld shower, a modern toilet with a soft-close seat, and the option for an integrated or separate washing machine and dryer.FURNITURE

    Every detail of this LHM homes is always meticulously selected. All hard furniture is custom made, produced by LHM Interior – bespoke cabinetry including wardrobes in the hallway, commodes, nightstands, sink cabinets, coffee tables in the living areas, benches, TV stands, and bunk beds. Soft furnishings and beds is included in this offering, guaranteeing a smooth transition into a life of refinement and luxury.FLOORS&STAIRS

    This house features bespoke ash stairs made by XTRAPP. Ash, chosen for its exceptional durability surpassing even oak, ensures prolonged stair longevity. Stirs with closed steps, glass railings, and wooden handrails, harmonize seamlessly with the floor color. Exclusive oak parquet on floors “LHM Exclusum,” measures 250mm wide and 21mm thick, featuring a solid 6mm oak surface. Opting for Graphite Brown in this house perfectly complements the chosen wall color and stairs. The floating single-strip oak parquet, 182mm wide and 14mm thick, is standard in first-floor bedrooms and on open areas and second-floor bedrooms, mirroring the color scheme from the first floor.

    HEATING

    The cabin features underfloor heating on the first floor and in the bathroom on the second floor. Additionally, the other rooms on the second floor are equipped with sleek black panel ovens mounted on the walls. Standard amenities include remote heating control, enabling easy adjustment for a cozy environment.

    This model includes a built-in fireplace Brunner/Rais. Crafted with quality steel for the lower part and a polished micro cement surface for the upper section, the fireplace is tailored to suit the room’s dimensions. A focal point of exquisite design, the fireplace not only provides warmth and comfort but also adds a distinctive and exclusive style to the cabin’s interior.CONSTRUCTION METHOD

    The first floor features half-timbered timber with vertical panels, offering increased flexibility in room layout and cabin furnishing. This floor showcases a modern appearance with its vertical wall panels, while the second floor exudes traditional loft style, characterized by horizontal logs. The use of normal trusses on the first floor allows for versatile room division, preserving a modern aesthetic. Yet, the timber walls on the second floor, along with robust roof ridges, retain the cottage’s timeless traditional charm.

    Each of our cabins comes complete with a turf roof and meticulous external and internal finishes, ensuring a blend of elegance and authenticity in every detail.AREA

    Oppdal – an all-year vacation destination.

    In Oppdal, situated in the southern region of Trøndelag, nature beckons at every turn. The expansive mountain range spans from Dovrefjell in the south to Trollheimen in the north, offering diverse highlights that vary depending on the season of your visit.This cozy LHM mountain house is being built in a pristine location adjacent to the Vangslia ski center. Positioned amidst untouched surroundings, the Vangslia ski center seamlessly connects to Ådalen, Sletvold, Hovden, and Stølen, forming one of Norway’s largest alpine resorts. Additionally, the immediate vicinity offers diverse hiking terrain and meticulously groomed ski tracks.SKIING

    For skiing enthusiasts seeking unparalleled experiences, Oppdal Ski Centre is your destination of choice. Renowned as one of Norway’s largest alpine areas, it embodies pure skiing at its best. Offering a selection of four distinct mountains, 14 ski lifts, and 35 slopes, this center ensures an unforgettable skiing venture. The interconnectedness of ski trails and chair lifts allows seamless transitions between mountains.

    At VANGSLIA, located 3 km west of central Oppdal, you’ll discover the hub of Oppdal Ski Centre—a bustling facility. Featuring amenities such as a children’s lift, transportation lines for young skiers, two chair lifts, a Poma lift, and two T-bar lifts, it caters to all skill levels. Additionally, its terrain parks beckon both novice and experienced skiers for an exhilarating experience. Basking in excellent sunny conditions, complemented by two food and beverage outlets, VANGSLIA stands as the ideal launchpad for an exceptional day of skiing.SUMMER ACTIVITIES

    Explore an extensive trail network during summer and autumn or follow the pilgrim path to Trondheim, maintained by 45,000 grazing sheep.

    Year-round, embark on a thrilling musk ox safari. Capture the moment with your camera but adhere to your guide’s instructions, maintaining a safe distance from these imposing yet potentially dangerous creatures.

    Main Features

    • Reference:
      SH462875
    • Location: Norway
    • Type: House
    • Bedrooms: 4
    • Bathrooms: 3
    • Built size: 175 m²
    • Plot size: 571 m²
    • Heating: Fireplace
    • Furniture: Furniture included
    • Parking: Garage, Private parking space
    • Outside area: Terrace / Balcony
    • Other areas: Storage / utility room

    Other Features

    • Fireplace
    • Furnished
    • Garage
    • Parking
    • Patio
    • Sauna

      Property Location

      Countries

      • Portugal
      • Spain

      & Others

      Contact Us

        Realties Abroad